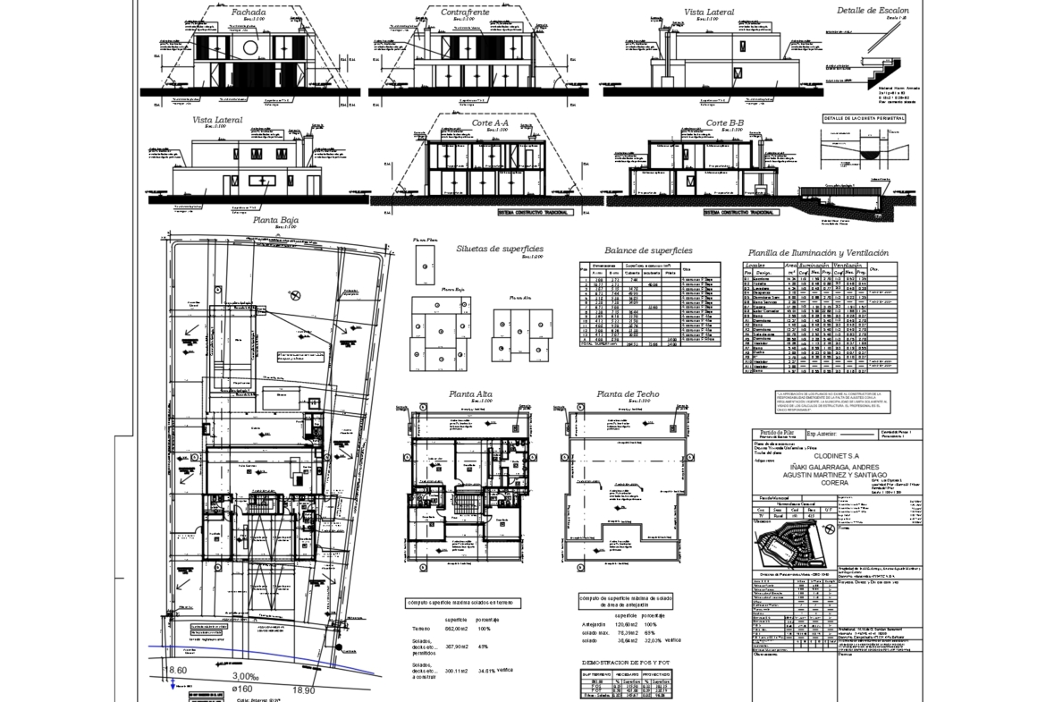
Venta de excelente casa de categoría, desarrollada en dos plantas, con una distribución funcional y ambientes amplios y luminosos.
La propiedad cuenta con cuatro dormitorios en suite: tres ubicados en planta alta y uno en planta baja, ideal como dormitorio, escritorio o playroom. En planta alta se destaca un cómodo family, pensado como espacio de estar íntimo o de recreación.
En planta baja presenta living y comedor integrados, cocina moderna integrada con isla, lavadero independiente y dependencias de servicio completas.
El área exterior ofrece una galería con parrilla, living exterior con hogar y baño exterior, ideales para disfrutar reuniones y momentos al aire libre. El jardín se encuentra parquizado y cuenta con pileta de 8 x 4 metros. Dispone además de garage semicubierto.
La vivienda está equipada con calefacción por piso radiante y caldera dual, asegurando confort durante todo el año.
Una propuesta moderna y funcional, pensada para vivir con comodidad y calidad.




